Set within the sought after village of Sholden, this impressive 3 bedroom semi detached home offers a stylish blend of modern living, energy efficiency, and everyday convenience. Ideally positioned close to the local shop and bus route, the property is perfectly suited for families, professionals, or those seeking a well connected village lifestyle.
Designed with comfort and practicality in mind, the ground floor welcomes you with a spacious entrance hall leading to three generous double bedrooms. The main bedroom benefits from a sleek en suite shower room, while the beautifully appointed 4 piece family bathroom features both a bath and separate shower. Adding a touch of luxury, the hallway, en suite, and bathroom all enjoy underfloor heating.
Further enhancing the practicality of the home is an integral garage and a separate utility room, providing valuable storage and workspace.
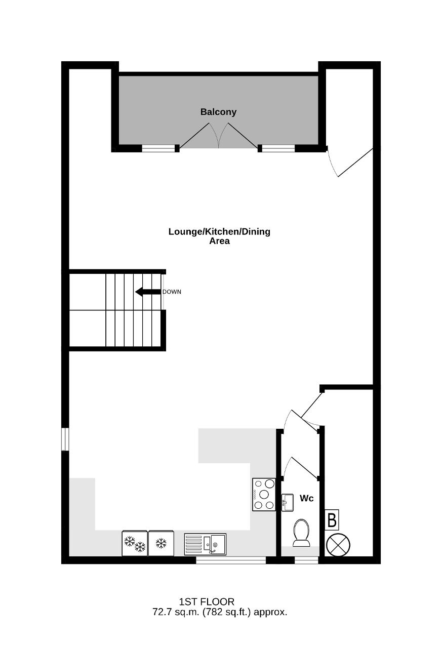
The first floor is dedicated to modern open plan living, creating a bright and sociable space ideal for both relaxing and entertaining. The lounge, kitchen, and dining areas flow seamlessly together, complemented by a convenient WC. From here, double doors open onto a private balcony with delightful views overlooking the cricket ground, the perfect setting for morning coffee or evening unwinding.
Outside, the rear garden has been thoughtfully arranged with both patio and lawn areas, offering space for outdoor dining, entertaining, or family enjoyment.
This home also stands out for its eco-conscious features, including LED lighting throughout and solar panels, helping to reduce running costs while supporting sustainable living. For added peace of mind, the property also benefits from the remainder of an NHBC warranty.
A superb opportunity to acquire a stylish, low-maintenance home in a desirable village location.
Entrance Hall -
Bedroom 1 - 13' 6'' x 10' 8'' (4.14m x 3.27m)
En Suite Shower Room -
Bedroom 2 - 18' 4'' x 9' 6'' (5.61m x 2.92m)
Bedroom 3 - 13' 1'' x 11' 7'' (3.99m x 3.55m)
Bathroom -
Utility Room - 10' 1'' x 5' 4'' (3.09m x 1.65m)
Garage/Workshop - 12' 9'' x 10' 1'' (3.9m x 3.09m)
Lounge/Kitchen/Dining Area - 37' 4'' x 23' 6'' (11.39m x 7.18m)
Balcony - 15' 7'' x 5' 7'' (4.77m x 1.71m)
WC -
Driveway Parking -
Rear Garden -
For further information on this property please call 01304 447418 or e-mail [email protected]