3 Bedroom Semi-Detached House For Sale in St Martins Road, Deal, Kent, CT14 9PB | Wilson Real Estate
3 Bedroom Semi-Detached House For Sale
St Martins Road, Deal, CT14 9PB
£270,000
Sold STC
  • 3 BEDROOM SEMI DETACHED HOUSE
  • LARGE SUNNY REAR GARDEN
  • OFF ROAD PARKING FOR 2 CARS
  • CONSERVATORY TO REAR
  • BATHROOM AND SEPARATE SHOWER ROOM
  • SITTING ROOM/DINING AREA
  • LOCAL SCHOOLS AND SHOPS NEARBY

Summary

This well presented and thoughtfully extended 3 bedroom semi detached family home offers spacious and versatile living accommodation, ideally situated close to local amenities, well regarded schools, and convenient bus routes.

Upon entering the property, you are welcomed by a useful entrance porch leading into a bright and inviting lounge/dining area, perfect for both everyday family living and entertaining guests. The property further benefits from a well appointed kitchen and a delightful conservatory, providing additional living space with views over the rear garden.

To the first floor, there are three well proportioned bedrooms along with a family bathroom and the added convenience of a separate shower room, ideal for busy households.

Externally, the property boasts a generous and sunny rear garden, offering an excellent space for outdoor relaxation, children"s play, or summer gatherings. To the front, there is off road parking for two vehicles.

This fantastic home combines comfort, practicality, and a great location, making it an ideal choice for families and those looking to upsize.

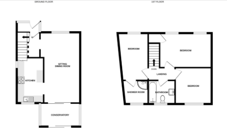
Floors/rooms

Ground Floor

Entrance Porch -

Entrance Hall -

Sitting Room/Dining Room - 19' 5'' x 10' 11'' (5.92m x 3.35m)

Kitchen - 12' 9'' x 7' 4'' (3.89m x 2.24m)

Conservatory - 12' 2'' x 7' 7'' (3.73m x 2.34m)

First Floor

Bedroom 1 - 12' 4'' x 8' 9'' (3.76m x 2.69m)

Bedroom 2 - 10' 2'' x 10' 0'' (3.1m x 3.07m)

Bedroom 3 - 13' 3'' x 7' 7'' (4.04m x 2.34m)

Bathroom -

Shower Room -

Exterior

Off Road Parking -

Rear Garden -

Additional Information

For further information on this property please call 01304 447418 or e-mail [email protected]

EPC Graph

Interested in this property?

01304 447418

[email protected]

Request a viewing

Share this property:

Rightmove ZooplaPrimelocationOnthemarketTrustpilotGoogle ReviewsOmbudsmanTSI