5 Bedroom Semi-Detached For Sale
Blenheim Road, Deal, CT14 7DD
Guide Price £600,000
Sold STC
  • ***PRICE RANGE £600,000 - £650,000***
  • 5 BEDROOM SEMI DETACHED HOUSE
  • LARGE LOUNGE WITH BAY WINDOW
  • KITCHEN WITH ISLAND AND SEPARATE UTILITY
  • DOWNSTAIRS WET ROOM
  • BATHROOM TO FIRST FLOOR
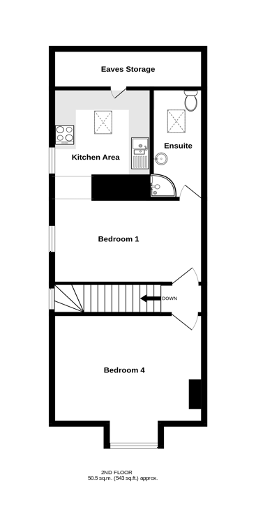
  • SHOWER ROOM & KITCHEN AREA TO TOP FLOOR
  • PERIOD FEATURES INCLUDING SASH WINDOWS
  • CLOSE TO TOWN CENTRE, SEAFRONT & STATION
  • NO ONWARD CHAIN

Summary

This elegant 5 bedroom semi detached period home is gracefully set across three floors and just moments from Deal's charming town centre, seafront, and train station. This is more than a home, it is a slice of Deal's history, where classic architecture meets modern living.

Step through the front door into a welcoming entrance hall, where solid wooden flooring sets a tone of warmth and quality. The spacious lounge, bathed in natural light from its beautiful bay window, offers the perfect setting for family gatherings or quiet evenings. Period sash windows and original fireplaces nod to the property's heritage, blending seamlessly with tasteful modern updates.

The heart of the home is the contemporary fitted kitchen, complete with an island breakfast bar, integrated appliances, and a separate utility area. Whether entertaining friends or enjoying a family meal, this space is designed for both function and style. A downstairs shower/wet room adds convenience and flexibility for modern family life.

On the first floor, you will find three generous bedrooms and a family bathroom, each room thoughtfully proportioned and filled with light. The top floor offers a unique twist, two further bedrooms, one featuring a self-contained kitchen area and shower room. Ideal as a private guest suite, a teenager's retreat, or even a home office, this adaptable space brings true versatility.

Step outside to the sunny rear garden, a peaceful haven perfect for al fresco dining, morning coffee, or simply soaking up the seaside air. With Deal's award-winning seafront, independent boutiques, and vibrant cafés just minutes away, this home places you at the heart of one of Kent's most desirable coastal towns.

Floors/rooms

Ground Floor

Entrance Hall -

Lounge - 15' 8'' x 14' 5'' (4.8m x 4.4m)

Kitchen/Breakfast Room/Dining Area - 14' 9'' x 14' 5'' (4.5m x 4.4m)

Utility Room - 11' 1'' x 8' 11'' (3.39m x 2.72m)

Shower Room -

First Floor

Bedroom 2 - 15' 8'' x 14' 5'' (4.8m x 4.4m)

Bedroom 3 - 17' 5'' x 11' 1'' (5.31m x 3.4m)

Bedroom 5 - 11' 1'' x 8' 0'' (3.4m x 2.44m)

Bathroom -

Second Floor

Bedroom 1 - 14' 5'' x 8' 6'' (4.4m x 2.61m)

Kitchen Area - 9' 5'' x 8' 10'' (2.88m x 2.71m)

En Suite Shower Room -

Bedroom 4 - 14' 5'' x 13' 3'' (4.4m x 4.05m)

Exterior

Front & Rear Gardens -

Additional Information

For further information on this property please call 01304 447418 or e-mail [email protected]

EPC Graph

Interested in this property?

01304 447418

[email protected]

Request a viewing

Share this property:

Rightmove ZooplaPrimelocationOnthemarketTrustpilotGoogle ReviewsOmbudsmanTSI